周辺は民家が少なく、落ち着いた雰囲気◎
雨漏りなどの修繕は必須ですがその分のポテンシャルは十分の一邸です。

物件概要
- 物件番号
- 487
- 取引内容
- 売買
- 金額
- 150万円
- 敷金・礼金
- 万円 / 万円
- 所在地
- 氷見市稲積
- 校区
- 比美乃江小学校/北部中学校
物件状況
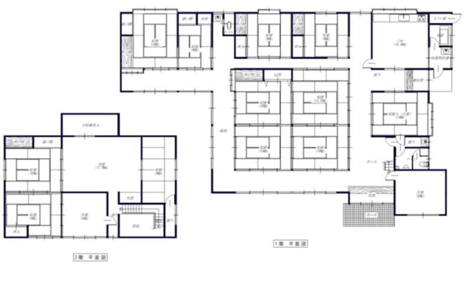
- 延床面積
- ㎡
- 土地面積
- 571.84㎡
- 構造
- 木造瓦葺2階建
- 築年数
- 1982年築
設備
- 水道
- 上水道
- 台所
- ガスコンロ
- トイレ
- 水洗(洋式)
- 風呂
- 有
- 駐車場
- カーポート2台 青空複数
備考
物件周辺は民家が少なく落ち着いた雰囲気◎
雨漏りなどの修繕は必須ですがその分のポテンシャルは十分に感じられる一邸です。
こだわり物件レポート
物件周辺は田んぼに囲まれた閑静なエリアですが、氷見I.Cにも近く、国道までの距離も近いので車移動の利便性は良好です。
敷地が広大かつ付属建物があるのが特徴で、様々な趣味に応えるキャパを持っています。
釣りや登山、サイクリング、DIYなど田舎暮らしで楽しみたいことがたくさんある方にとって、「出す・洗う・干す・戻す」の一連の行動がスムーズにできるのはありがたいですよね。
玄関は広い土間となっており、濡れ物や大きな荷物を一時置きしても、出入りが詰まりにくくなっています。